GRAND TÍPUSHÁZAK
Készültségi szintjét tekintve legyen szerkezetkész, kívülkész vagy kulcsrakész ház, típusházainkat azoknak az ügyfeleinknek ajánljuk, akik szeretnék mindennapjaikban megélni a természetes anyagok és a megbízható, jól bevált gépészet minden előnyét. A készház-technológia által biztosított gyári minőségben előállított fal- és födémpanelekkel kínáljuk mindezt, kész típustervek alapján, költséghatékony és kiszámítható konstrukciókkal, rövid határidőre.
EPS-hőszigetelés, dryvit vakolatrendszer, betoncserép, elektromos fűtés: praktikus, bevált, minőségi megoldások biztosítják otthona kényelmét. Csomagajánlatunkat kiváló hőszigetelési értékkel rendelkező külső műanyag vagy fa nyilászárókkal, dekoratív belső ajtókkal, időtálló alumínium ereszcsatornákkal tesszük teljessé.
A feltüntetett ár forintban értendő és nem tartalmazza az ÁFA-t, amely ár, műszaki leírás, alaprajz és minden egyéb információ – a helyszín, a konkrét műszaki tartalom és az arra is figyelemmel készített tételes költségvetés (árajánlat), a megvalósítás ütemezése stb. ismerete hiányában – tájékoztató jellegű, vagyis azok nem minősülnek a Balati Építőipari Kft kötelező érvényű ajánlatának, a Balati Építőipari Kft
az azokkal kapcsolatos ajánlati kötöttségét kizárja. A Balati Építőipari Kft
a típusházak, az árak, a műszaki leírások, az alaprajzok stb., valamint az oldalon közölt egyéb adatok egyoldalú megváltoztatásának a jogát fenntartja.
MIÉRT ELŐNYÖS?
Kontrollálható, fix költségvetéssel számolhatsz, nincsenek "váratlanul fellépő" extra kiadások. Ügyfeleinket képzett kollégáink segítik végig az építkezés komplex folyamatán úgy, hogy csak a számukra releváns kérdésekkel kelljen foglalkozniuk. Emellett biztosítjuk azt is, hogy ügyfelünk az előre egyeztetett tervek mentén, folyamatosan figyelemmel követhesd új otthonod megszületését, akár kulcsrakész ház készültségig.
HELSINKI TÍPUSHÁZ
- SZINTEK : 1 szintes
- ALAPTERÜLET : 90,7 m2
- SZOBÁK : 3 szobás
Alaprajz

- 001 Előtér 5,46 m2
- 002 Közlekedő 7,51 m2
- 003 Mosdó 1,64 m2
- 004 Fürdő 4,99 m2
- 005 Háztartási h. 3,43 m2
- 006 Szoba 10,37 m2
- 007 Szoba 11,52 m2
- 008 Konyha-Étkező 12,97 m2
- 009 Nappali 16,96 m2
- 010 Szoba 12,39 m2
- 011 Fürdő 3,44 m2
- 012 Terasz 35,94 m2
ÁRAK ÉS KÉSZÜLTSÉGI SZINTEK
SZERKEZETKÉSZ : 29 800 000 Ft-tól - 328 556 Ft / m2-től
KÍVÜLKÉSZ : Kérjen ajánlatot!
KULCSRAKÉSZ : Kérjen ajánlatot!
GENF TÍPUSHÁZ
- SZINTEK : 1 szintes
- ALAPTERÜLET : 99,6 m2
- SZOBÁK : 3 szobás
Alaprajz

- 001 Szoba 11,91 m2
- 002 Szoba 10,85 m2
- 003 Szoba 10,47 m2
- 004 Közlekedő 5,79 m2
- 005 Mosdó 1,33 m2
- 006 Fürdő 7,78 m2
- 007 Előtér 6,76 m2
- 008 Gépészeti h. 5,04 m2
- 009 Kamra 2,42 m2
- 010 Konyha-Étkező 16,83 m2
- 011 Nappali 20,39 m2
- 012 Terasz 53,10 m2
ÁRAK ÉS KÉSZÜLTSÉGI SZINTEK
SZERKEZETKÉSZ : 34 500 000 Ft-tól , 346 386 Ft / m2-től
KÍVÜLKÉSZ : Kérjen ajánlatot!
KULCSRAKÉSZ: Kérjen ajánlatot!
HEIDELBERG TÍPUSHÁZ
- SZINTEK : 1 szintes
- ALAPTERÜLET : 103,31 m2
- SZOBÁK : 3 szobás
Alaprajz

- 001 Előtér 5,53 m2
- 002 Közlekedő 6,56 m2
- 003 Mosdó 1,93 m2
- 004 Fürdő 8,14 m2
- 005 Szoba 12,86 m2
- 006 Szoba 10,93 m2
- 007 Szoba 10,81 m2
- 008 Nappali 24,95 m2
- 009 Konyha 7,26 m2
- 010 Étkező 9,04 m2
- 011 Gépészet 3,01 m2
- 012 Fedett terasz 2,27 m2
ÁRAK ÉS KÉSZÜLTSÉGI SZINTEK
SZERKEZETKÉSZ : 33 900 000 Ft-tól , 328 138 Ft / m2-től
KÍVÜLKÉSZ : Kérjen ajánlatot!
KULCSRAKÉSZ : Kérjen ajánlatot!
HALLSTATT TÍPUSHÁZ
- SZINTEK : 1 szintes
- ALAPTERÜLET : 60,6 m2
- SZOBÁK : 2 szobás
Alaprajz

- 001 Előtér 3,70 m2
- 002 Konyha-Étkező 11,50 m2
- 003 Kamra 1,44 m2
- 004 Nappali 16,86 m2
- 005 Fürdő 5,04 m2
- 006 Szoba 10,02 m2
- 007 Szoba 12,02 m2
- 008 Fedett terasz 20,20 m2
ÁRAK ÉS KÉSZÜLTSÉGI SZINTEK
SZERKEZETKÉSZ : 21 800 000 Ft-tól , 359 736 Ft / m2-től
KÍVÜLKÉSZ : Kérjen ajánlatot!
KULCSRAKÉSZ : Kérjen ajánlatot!
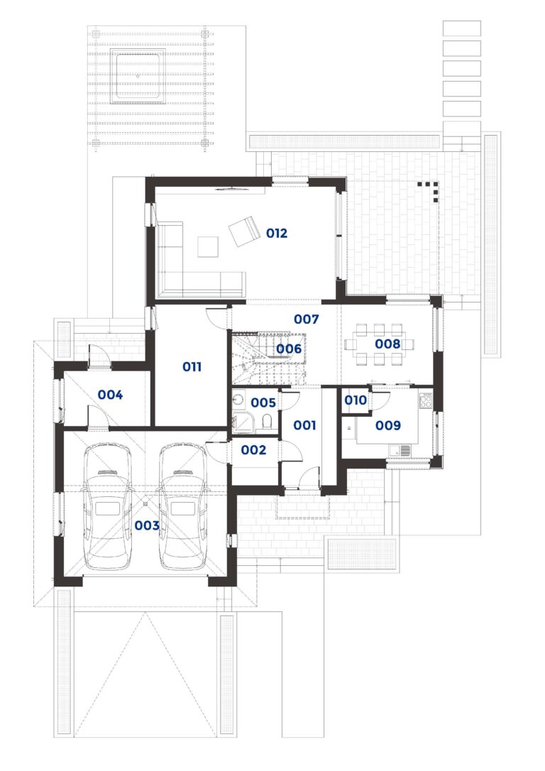
FLORIDA TÍPUSHÁZ
- SZINTEK : 2 szintes
- ALAPTERÜLET : 239 m2
- SZOBÁK : 5 szobás
Alaprajz
Földszint

- Földszint
- 001 Előtér 8,49 m2
- 002 Gardrób 3,51 m2
- 003 Garázs 37,7 m2
- 004 Gépészeti h. 7,59 m2
- 005 Mosdó 3,39 m2
- 006 Lépcső 5,65 m2
- 007 Közlekedő 7,43 m2
- 008 Étkező 11,66 m2
- 009 Konyha 8,88 m2
- 010 Kamra 1,08 m2
- 011 Vendégszoba 13,84 m2
- 012 Nappali 32,53 m2
Alaprajz
Emelet

- Emelet
- 101 Érkező 12,32 m2
- 102 Szoba 11,54 m2
- 103 Szoba 10,95 m2
- 104 Szoba 10,95 m2
- 105 Szoba 16,20 m2
- 106 Gardrób 7,60 m2
- 107 Fürdő 7,70 m2
- 108 Mosókonyha 7,72 m2
- 109 Fürdő 12,31 m2
ÁRAK ÉS KÉSZÜLTSÉGI SZINTEK
SZERKEZETKÉSZ : 82 000 000 Ft-tól , 343 096 Ft / m2-től
KÍVÜLKÉSZ : Kérjen ajánlatot!
KULCSRAKÉSZ : Kérjen ajánlatot!
Egy újabb álom megvalósulásának kezdete !
Családi ház a kertvárosban
Helyszín: Pécsudvard
Projekt kezdete: 2024 Március.
Projekt vége:
Pillanatképek

